Kapalı Yarı Manyetik Tamburlu Separatör
Bantlı sisteme gerek kalmadan, üzerine beslenen ürünün içerisindeki demir partiküllerini el değmeden ayırıcı bıçak sayesinde otomatik şekilde ayrıştırılmasını sağlar. Manyetik olan ürün tamburun arka kısmına, manyetik olmayan üründe tamburun ön kısmına düşer. Tahıl (buğday vb.) kuru gıda (şeker vb.) kimyasal, karbon siyahı içindeki metal tellerin temizlenmesinde,plastik ve seramik endüstrilerinde granül ve elyaf gibi yüksek kapasiteli kaba hammaddeler içindeki Ferromanyetik (Fe) demir içerikli metallerin sürekli ve tam otomatik olarak ayrıştırılmasında kullanılır.
Tambur içinde açılı ayarlanabilir daimi mıknatıslı olduğu için Yarı Manyetik Tambur olarak adlandırılmaktadır. Boru hattı veya vibrasyonla beslenen ürün tambur yüzeyinden serbest akışla akarken içindeki Fe içerikli metaller Manyetik yüzeye tutunarak ürün akışının tersine arka yüzeye düşerek üründen ayrılmaktadır. Ürüne bağlı farklı besleme şekilleri önerilmektedir.
Manyetik Tamburlar, yüksek manyetik alınganlığa sahip demir, çivi, vb. ayrıştırmak için 1000-1500 Gauss yeterli olduğundan Ferrit Mıknatıslardan imal edilmektedir.
Zayıf manyetik parçaçıkları ayrıştırmak için Neodimyum Mıknatıslar kullanılmaktadır. Paslanmaz zırh yüzeyinde ölçülen manyetik akı yoğunluğu değeri B: 2000-2500 Gauss / 3000-3500 Gauss / 4000-4500 Gauss / 6000-7000 Gauss özelliklerde imal edilebilmektedir. Bu değerler beslenen ürünün partikül boyutlarına, metalin manyetik alınganlığına, vb. özelliklere göre seçilmekte ve önerilmektedir.
 
   
  
Gövde içerisinde bulunan gıda tipi tambur mıknatıslarımız bakteri üremesine karşı hijyenik bir tasarıma sahiptir. Gövde komple paslanmaz olarak üretilmektedir.
       
   

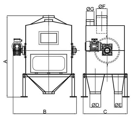
| ÖLÇÜLER mm (DIMENSIONS) | TEKNİK ÖZELLİKLER | |||||||
| MODEL | A YÜKSEKLİK | B GENİŞLİK | C EN | ØD ÇIKIŞ | ØE ÇIKIŞ | ØF GİRİŞ | KAPASİTE (Buğday) | Motor Gücü | 
| CMD-20 | 1150 | 700 | 740 | 140 | 120 | 140 | 15-20 t/h | 0,55 kW | 
| CMD-40 | 1250 | 1000 | 740 | 170 | 120 | 170 | 30-40 t/h | 0,55 kW | 
| CMD-60 | 1500 | 1200 | 850 | 220 | 120 | 220 | 50-60 t/h | 0,55 kW | 
| CMD-100 | 2300 | 1600 | 1150 | 275 | 120 | 273 | 80-100 t/h | 0,75 kW | 
 
                             
                             
                                                 
                                                 
                                                 
                                                 
                                                 
                                                 
                                                 
                                             
                                             
                                             
                                             
                                             
                                             
                                     
                                    